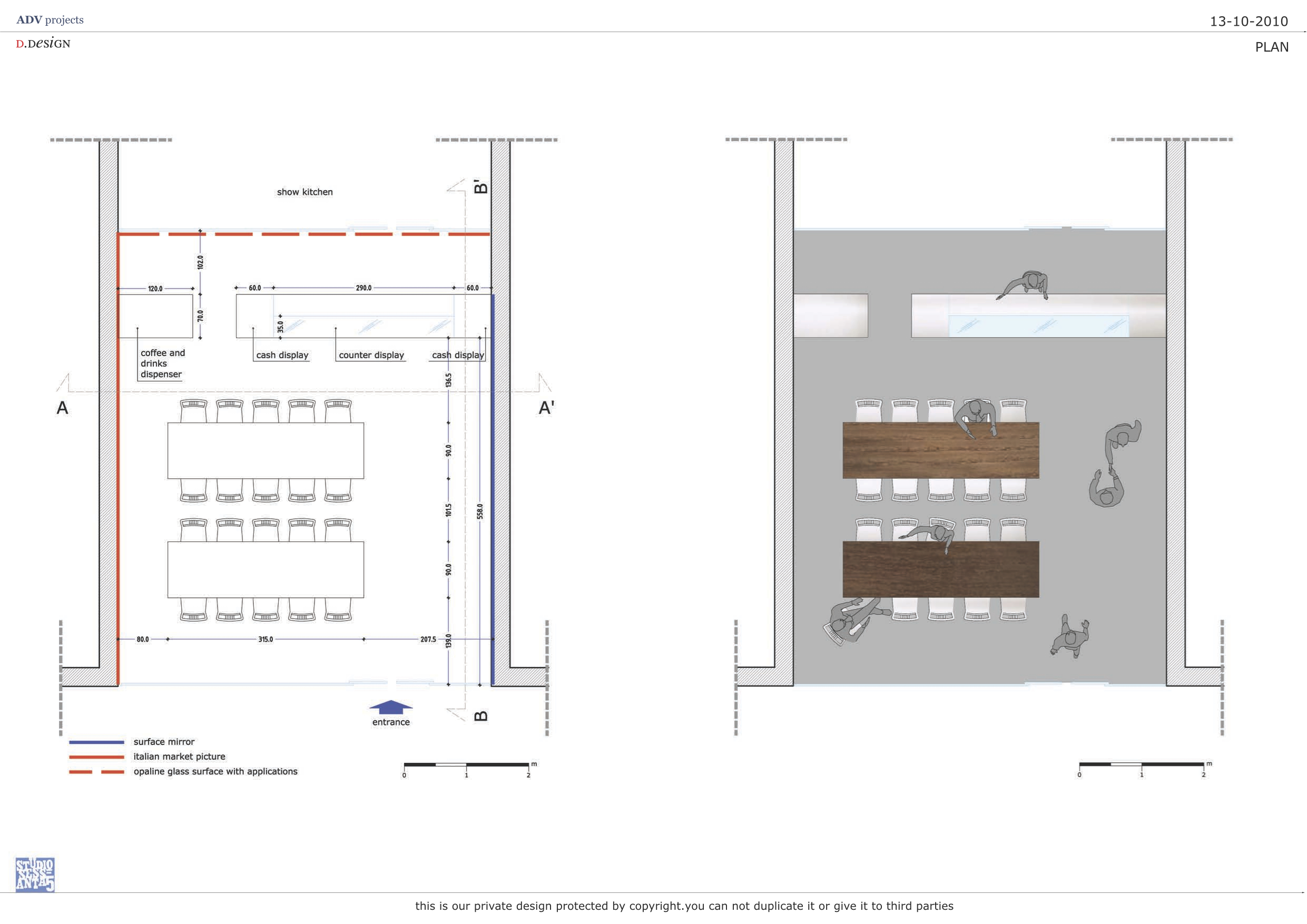
Adriano Vanara Architetto
ITALIAN FOOD STORE CONCEPT LONDON